Продажа помещения различного назначения, Владивосток, Невельского ул., 5, Приморский край
- Регион
- Приморский край
| Адрес | Владивосток, Невельского ул., 5Объект на карте |
- Этаж
- 5 этаж в 23-этажном доме
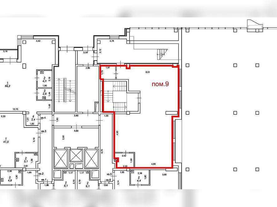
- Общая площадь
- 127.60 м2
- Дата обновления
- 05.05.2026
- Дата размещения
- 17.12.2025
Реализуется коммерческое помещение свободного назначения которое находится в ЖК «НЕВЕЛЬСКОЙ»Дом комфорт класса. Продажа от застройщика по прямому договору купли продажи. Цена указана с учетом НДС.
Это идеальное решение для различных видов бизнеса: Офис с открытой планировкой. Коворкинг-пространство для организации мест для фрилансеров и стартапов. Салон красоты по оказанию косметических процедур. Есть выход на террасу.
Помещение находится в жилом комплексе, что гарантирует высокий трафик потенциальных клиентов дома, а также соседних домов.
Это идеальное решение для различных видов бизнеса: Офис с открытой планировкой. Коворкинг-пространство для организации мест для фрилансеров и стартапов. Салон красоты по оказанию косметических процедур. Есть выход на террасу.
Помещение находится в жилом комплексе, что гарантирует высокий трафик потенциальных клиентов дома, а также соседних домов.











